#310_高知県室戸市浮津一番町

NEW

Previous
Next
Previous
Next
#310_高知県室戸市浮津一番町
#310_高知県室戸市浮津一番町
#310_高知県室戸市浮津一番町
#310_高知県室戸市浮津一番町
#310_高知県室戸市浮津一番町
#310_高知県室戸市浮津一番町
#310_高知県室戸市浮津一番町
#310_高知県室戸市浮津一番町
#310_高知県室戸市浮津一番町
#310_高知県室戸市浮津一番町
#310_高知県室戸市浮津一番町
#310_高知県室戸市浮津一番町
#310_高知県室戸市浮津一番町
#310_高知県室戸市浮津一番町
#310_高知県室戸市浮津一番町
#310_高知県室戸市浮津一番町
#310_高知県室戸市浮津一番町
#310_高知県室戸市浮津一番町

物件番号

#310_高知県室戸市浮津一番町

#事業用#別荘#民泊#移住

¥800,000 税込

仲介手数料無料

高知県室戸市浮津一番町123番地

お名前

電話番号

メールアドレス

お問い合わせ内容

資料ダウンロード

◆観光スポット室戸岬・世界ジオパークが車10分! ◆市役所・スーパー・道の駅が車5分圏内! ◆リフォームして移住・別荘・民泊にもオススメ◎

https://maps.app.goo.gl/2MoanM2kP6MX55D7A

交  通

土佐くろしお鉄道 ごめん・なはり線 「奈半利駅」
バス35分「室戸浮津二番町」停歩2分、車30分23.9km

土  地

面積

250.7㎡

地目

宅地

権利

所有権

地勢

平坦地

接道

南側 公道 幅員 約4m 接道 約19m/西側 公道 幅員 約3.3m 接道 約10m

建  物

面積

101.00㎡

構造

不詳

建築日

不詳

増築

なし

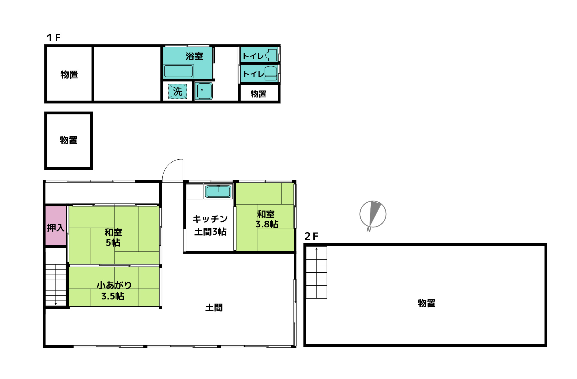
間取り

不詳

不具合箇所

床凹みあり

残置物

あり

空き家期間

約20年

法令制限

都市計画

非線引き

用途地域

指定なし

再建築

災害危険区域

-

その他制限

斜線制限、22条区域、宅地造成等工事規制区域、 土砂災害警戒区域、津波災害警戒区域

施  設

水道

上水道

ガス

プロパン

下水

汲み取り

雑排水

側溝

雨水

側溝

電気

四国電力

駐車場

あり

条  件

内見方法

キーボックス

引渡時期

相談

仲介手数料

なし

固定資産税

令和7年度=21800円/年

管理費

なし

中間省略登記

あり

その他

備  考

※現況有姿・測量未測量・契約不適合責任免責
※建物未登記。建物面積は概算です。
※本物件には、浮津一番町224番(宅地)、浮津1133番2(畑(地目変更予定))の土地が付属いたします。
※残置物あり